污水廠在運行過程中,可能會產生惡臭氣體,其中含有的硫化氫、氨氣、甲硫醇和烴類化合物等組成,具有易揮發、嗅閥值低等特點,不僅嚴重污染周邊居民生活環境,危害人體健康,而且對污水處理廠的金屬材料、設備和管道具有腐蝕性。針對污水廠的惡臭氣體的治理分為三部分,污水池加蓋密閉、廢氣收集和處理排放。
服務熱線:0371-53391555
污水廠在運行過程中,可能會產生惡臭氣體,其中含有的硫化氫、氨氣、甲硫醇和烴類化合物等組成,具有易揮發、嗅閥值低等特點,不僅嚴重污染周邊居民生活環境,危害人體健康,而且對污水處理廠的金屬材料、設備和管道具有腐蝕性。針對污水廠的惡臭氣體的治理分為三部分,污水池加蓋密閉、廢氣收集和處理排放。加蓋是第一步,這一部分設計應注意盡量減少密閉的空間,進而減少廢氣處理的風量,廢氣收集大多采用玻璃鋼管道,從反吊膜較高點引風(反吊膜設計應考慮引風口),送風至廢氣處理設備,最后經15米高塔達標排放,以達到國家環保要求,且不影響周邊環境。

污水站惡臭治理工藝圖
目前,治理惡臭氣體的主要方法有物理法、化學法和生物法3類。
物理法:是不改變惡臭物質的化學性質,只是用一種物質將它的臭味掩蔽和稀釋,或者將惡臭物質由氣相轉移至液相或固相。常見方法有掩蔽法、稀釋法、冷凝法和吸附法等。
化學法:是使用另外一種物質與惡臭物質進行化學反應,改變惡臭物質的化學結構,使之轉變為無臭物質或臭味較低的物質。常見方法有燃燒法、氧化法和化學吸收法(酸堿中和法)等。
生物法:是利用微生物的代謝活動使惡臭物質氧化降解為無臭物質。
物理、化學及生物脫臭的主要方法及特點
方法 | 原理 | 特點 | 適用范圍 |
掩蔽法 | 采用更強烈的芳香氣味或其他令人愉快的氣味與臭氣摻和,以掩蔽臭氣,使之能被人接受 | 可盡快消除惡臭影響,靈活性大,費用低,但惡臭成分并沒有被去除掉,除臭率一般< 50%,但低投資。 |
適用于需要立即地、暫時地消除低濃度惡臭氣體影響的場合 |
稀釋法 | 將有臭味的氣體通過煙囪排至大氣,或用無臭空氣稀釋,降低惡臭物質濃度和臭味 | 費用低,但易受氣象條件的影響,惡臭物質仍然存在 | 適用于處理中、低濃度的有組織排放的惡臭氣體,受環保限制。 |
燃燒法 | 在高溫下惡臭物質 與燃料氣充分混合, 實現完全燃燒 | 凈化效率高,惡臭物質被徹底氧化分解,但設備易腐蝕,消耗燃料,投資高,處理成本高,易形成二次污染 | 適用于大型設施的高濃度、小氣量、難處理的臭氣處理 |
氧化法 |
利用強氧化劑氧化惡臭物質,使之無臭和低臭 | 凈化效率高,但需要氧化劑, 處理費用高 |
適用于處理大氣量的、高中濃度的臭氣 |
吸收法 | 使用水等溶劑溶解臭氣中的惡臭物質 | 可處理大流量氣體,工藝成熟,但凈化效率不高,消耗吸收劑,易形成二次污染 | 適用于處理大氣量、高中濃度的臭氣 |
吸附法 | 利用吸附劑的吸附功能使惡臭物質由氣相轉移至固相 | 凈化效率很高,可處理多組分的惡臭氣體,但吸附劑費用昂貴,再生比較困難,對待處理的惡臭氣體要求高 | 適用于處理大氣量、低濃度、高凈化要求的惡臭氣體 |
生物法 | 利用微生物的代謝活動使惡臭物質氧化降解為無臭物質 | 凈化效率很高,可處理復雜組分的惡臭氣體,無二次污染, 但對待處理的惡臭氣體要求適宜的生物、溫度和含濕量 | 適用于中低濃度的惡臭氣體的處理。 |

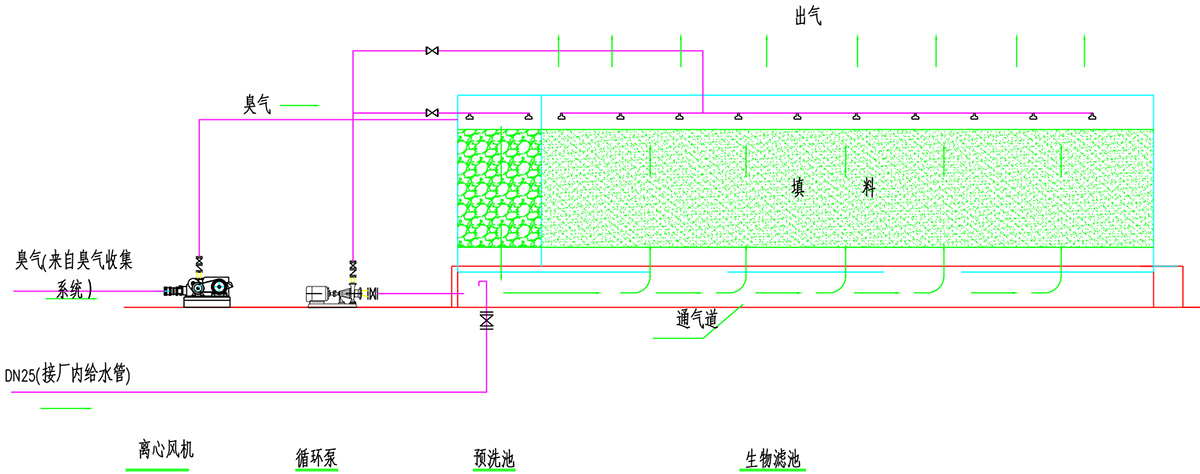
生物濾池除臭工藝采用“微生物”降解技術,利用生長在填料上的除臭微生物對臭氣中的惡臭物進行吸附、吸收和代謝從而達到除臭的目的。
生物除臭濾池主體由洗滌區+生物濾床過濾區組成,采用一體式矩形全封閉結構安裝;濾池結構采用碳鋼箱體+玻璃鋼防腐,外加保溫,除臭設備頂部留有人孔供維修檢修用,塔體內部設有噴淋系統檢修口。

生物濾池工藝圖
· 對成分復雜的臭氣適應性強,可適應臭氣濃度波動范圍大的情況下使用。
· 運行費用低、能耗低、噪音低;可靠性高、安全性高、去除效率高、全程為自動控制,不需要專人管理。
· 結構緊湊、新穎、可實現設備與控制分離,實現一鍵式操作。
· 凈化率高,可以全年運行,每天連續運行24h,其處理過程不產生二次污染。

活性炭吸附塔,是一種高效率經濟實用型有機廢氣的凈化與治理裝置;該設備是凈化較高濃度有機廢氣和噴漆廢氣的吸附設備,是利用活性炭本身高強度的吸附力,結合風機作用將有機廢氣分子吸附住,對苯、醇、酮、酯、汽油類等有機溶劑的廢氣有很好的吸附作用。
根據處理氣體污染因子的不同及處理廢氣量的大小確定吸附面積、。同時針對不同工藝生產中所排放的廢氣特性,如排放廢氣溫度、是否含有油霧、粉塵等相關參數,在廢氣設備進口部分內置或增設冷卻器、過濾器等預處理裝置或功能段。很好的保護了吸附段,確保吸附塔在高效狀態下運行。

活性炭吸附工藝圖
· 吸附效率高,能力強;
· 設備構造緊湊,占地面積小,維護管理簡單方便,運轉成本低;
· 能夠同時處理多種混合有機廢氣;
· 采用自動化控制運轉設計,操作簡易、安全;
· 全密閉型,室內外皆可使用。

離子法廢氣處理系統合成主要包含主反應器,光觸媒反應導入裝置。廢氣經過收集系統收集后進入離子催化氧化廢氣處理合成系統,離子反應導入裝置對主反應器產生離子,在其內部的價電子被激發跨過禁帶躍入導帶,生成的電子空穴被導入主反應器內,并擴散到反應器內過濾板的二氧化鈦表面上,穿過界面與吸附在過濾板上的物質發生氧化還原反應。其空穴能量7.5eV,氧化電位+3.0V,具有極強的氧化能力,能夠氧化有機化合物,達到完全礦化的程度,生成二氧化碳、水和無機物。處理后的廢氣繼續進入水洗塔,與水反應生成羥基自由基,電子具有還原性,能與氧分子發生還原反應生成過氧自由基,這些自由基具有很強的氧化能力,也能夠氧化有機物。從而使得廢氣達到完全的凈化,達標排放。
離子體是不同于氣態、固態、液態的第四態物質,由高能電子、正負離子、自由基(OH、H、O、O3等)和中性粒子等組成。氣體經過離子處理裝置的反應器區域時,在高能電子和自由基強氧化等多重作用下,氣體中的有機物分子鏈被斷開,發生一系列復雜的氧化還原反應,生成CO2、H2O等無害物質,正負離子可以空氣清新。另外,借助離子體中的離子與物體的凝并作用,可以對小至亞微米級的細微粒物(0.1~3微米)進行有效的收集。

低溫等離子工藝圖
· 脈沖電壓高達50KV,電子能量高達7ev;
· 耗電低220V/110W;
·
模塊化組合設計,現場安裝簡便;
· 凈化效率95%以上。